Продукти
списък
- Решетки
- Дифузори
- BDV дисков клапан
- Пластмасов дисков клапан BPDV
- BPRD пластмасов кръгъл дифузьор
- BRCD кръгъл дифузьор за таван
- BSCD Квадратен таванен дифузьор с плосък нож
- BSCD-CB Квадратен таван с извита лопатка
- BDD барабанен дифузьор
- Дифузер BICD Ideal Confort
- BJD струен дифузьор (единична стена)
- BJD-DW струен дифузьор (с двойна стена)
- BRSD ролков слот дифузьор
- BRSD-L линеен слот дифузьор
- BSD слот дифузьор
- Вихров дифузьор BSWA
- Вихров дифузьор BSWB
- Вихров дифузьор BSWC
- BSWD Четирипосочен вихров дифузьор
- BTD турбулентен вихров дифузьор
- Подови конвектори
- Лувъри
- Капаци за достъп и управление
- Амортисьори
- BBD-Q амортисьор за обратна тяга
- BBD-R амортисьор с кръгла задна тяга
- BCAV Механичен амортисьор с постоянен поток (CAV)
- BID Iris Damper
- BVCD правоъгълен амортисьор за регулиране на силата на звука
- BVCD-G правоъгълен амортисьор с уплътнение
- BVCD-L амортисьор за евакуация на дим с решетка
- BVCD-R кръгъл демпфер за контрол на силата на звука
- BVCD-RP кръгъл демпфер за регулиране на обема с перфорирана клапа
- BVCD-S димоотвод и клапа на шахтата
- Амортисьори с променлив обем на въздуха (VAV))
- Противопожарни клапи
- Нагнетателни кутии
- Разпределителни кутии
- Атенюатери на звука
- Климатични камери
- Устройства за рекуперация на топлината
- Кухненски вентилационни системи
- Въздушен нагревател
- Аспиратори тип шкаф
- Канални вентилатори
- Въздушни завеси
- Филтри
- Морски устройства
- Уреди за пречистване на въздуха
Линейни решетки BLG



Линейни решетки BLG
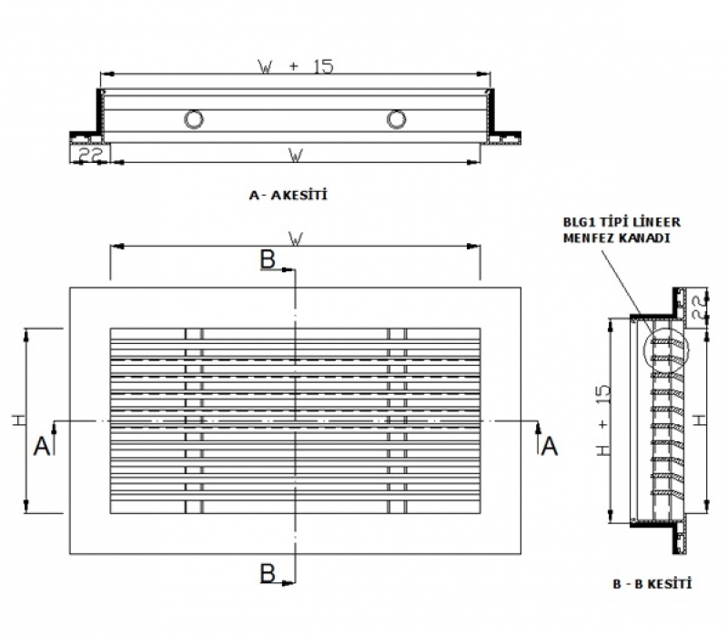
Линейните решетки се използват за подаване на горещ или студен климатизиран въздух с ниски температурни разлики от вентилационните канали към околната среда или за извеждане на замърсен въздух от околната среда. Вратите за достъп с линейна решетка осигуряват лесна намеса на устройствата в случай на повреда и също така могат да се използват като подаваща/връщаща решетка за устройства.
Цена : 0 лв
Главна информация
Модели
PDF
Главна информация
МАТЕРИАЛ
Цялата рамка на продукта и остриетата са произведени от екструдиран алуминиев профил.
ПОКРИТИЕ
- Електростатично прахово покритие (стандартните цветове са RAL 9010 и RAL 9016)
- Анодизиран алуминий
- всички цветове в други RAL кодове. В зависимост от търсенето се предлагат и
Видове рамки
- 17 мм рамка
- 22 мм рамка
- 32 мм рамка
МОНТАЖ
- Монтаж с винт
- Монтаж с щипки
- Монтаж с пластинчата пружина
АКСЕСОАРИ
- BPBD : Амортисьор с паралелни лопатки
- BOBD: Амортисьор с противоположни лопатки
- BPB: Нагнетателна кутия
- BSB : Подрамка
СИМВОЛИ
BLGF: Линейна рамка на решетката
SC : Монтаж с винт
CS : Монтаж с щипки
PS : Монтаж с подрамка
W (mm): Дължина на врата
H (mm): Височина на врата
EPC: Електростатично прахово покритие
NA: Анодизиран алуминий
Модели
BLG1: Линейна решетка, която има фиксирани лопатки с огъване на 17°
BLG3: Линейна решетка, която има фиксирани лопатки с 30° огъване
BLGAD: Врата за достъп с линейна решетка с огънати на 17° или 30° перки
PDF
